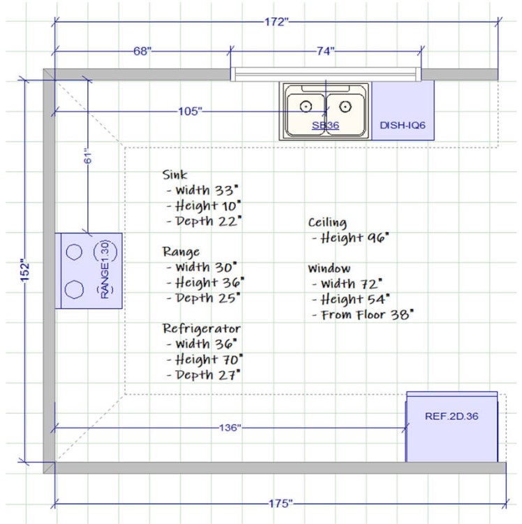
Our Video Measurement Guide Video Our Project Example Project Drawing Name Name(Required) First Last Are you working with a Kitchen & Bath Industry Professional?(Required)YesNoI am The ProfessionalPhone(Required)Email(Required) Project Address(Required) Street Address Cabinet Style(Required)White ShakerDove GreyPearl WhiteCyber GreyVersa ShankerGlacier WhiteDark CaramelEspresso ShakerSlim Shaker AlabasterSlim Shaker EbonyWhat is your project vison?(Required)Essentials OnlyMid-RangeLuxuriousCabinetry Budget(Required)Under $1500Under $3000Under $6000Under $9000Over $9000Upper Cabinet Height(Required)30"36"42"Ceiling Height(Required)Where do you want your microwave?(Required)Mounted Over The StoveOn The CountertopIn a base cabinetIn a wall cabinetI will not have a microwaveProject Start Date(Required)1 to 2 weeks2 to 4 weeks1 to 3 months3 to 6 months6 to 12 monthsPick Up / Shipping Option(Required)Pick up in Austin, TXPick up in Jacksonville, FLPick up in Nashville, TNPick up in New Orleans, LAPick up in Orlando, FLPick up in Tampa, FLShip to my JobsiteAdditional Notes(Required)Project Drawing(Required) Drop files here or Select files Max. file size: 25 MB. CAPTCHA